Industrial Conversion

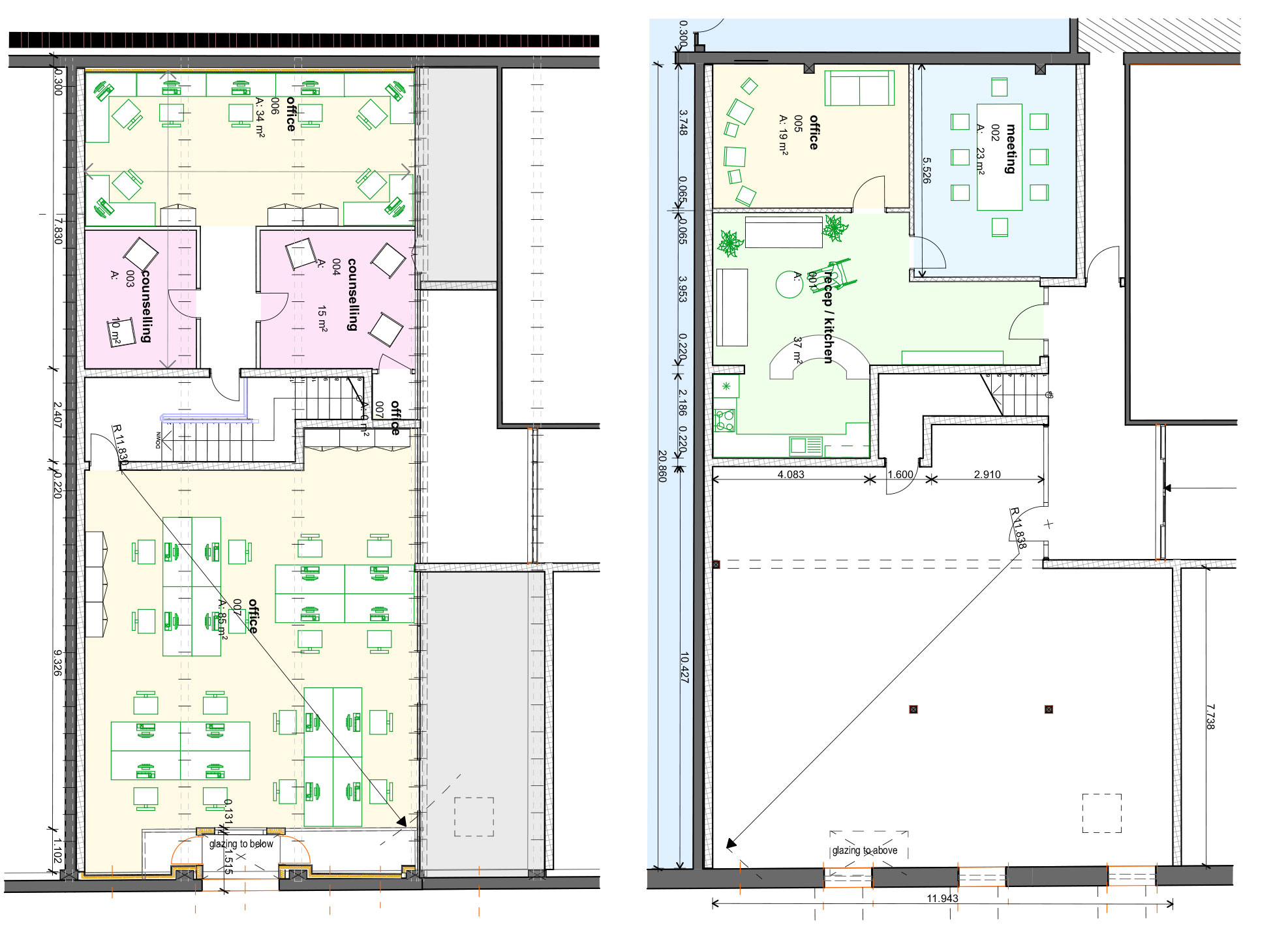
Planning for multiple-use functions, a variety of layouts, 3D sketches & final planning consent. Office layouts, fire escape routes & services layouts are critical to the success of this warehouse conversion. Re-imagining uses in an industrial shell