Edge House

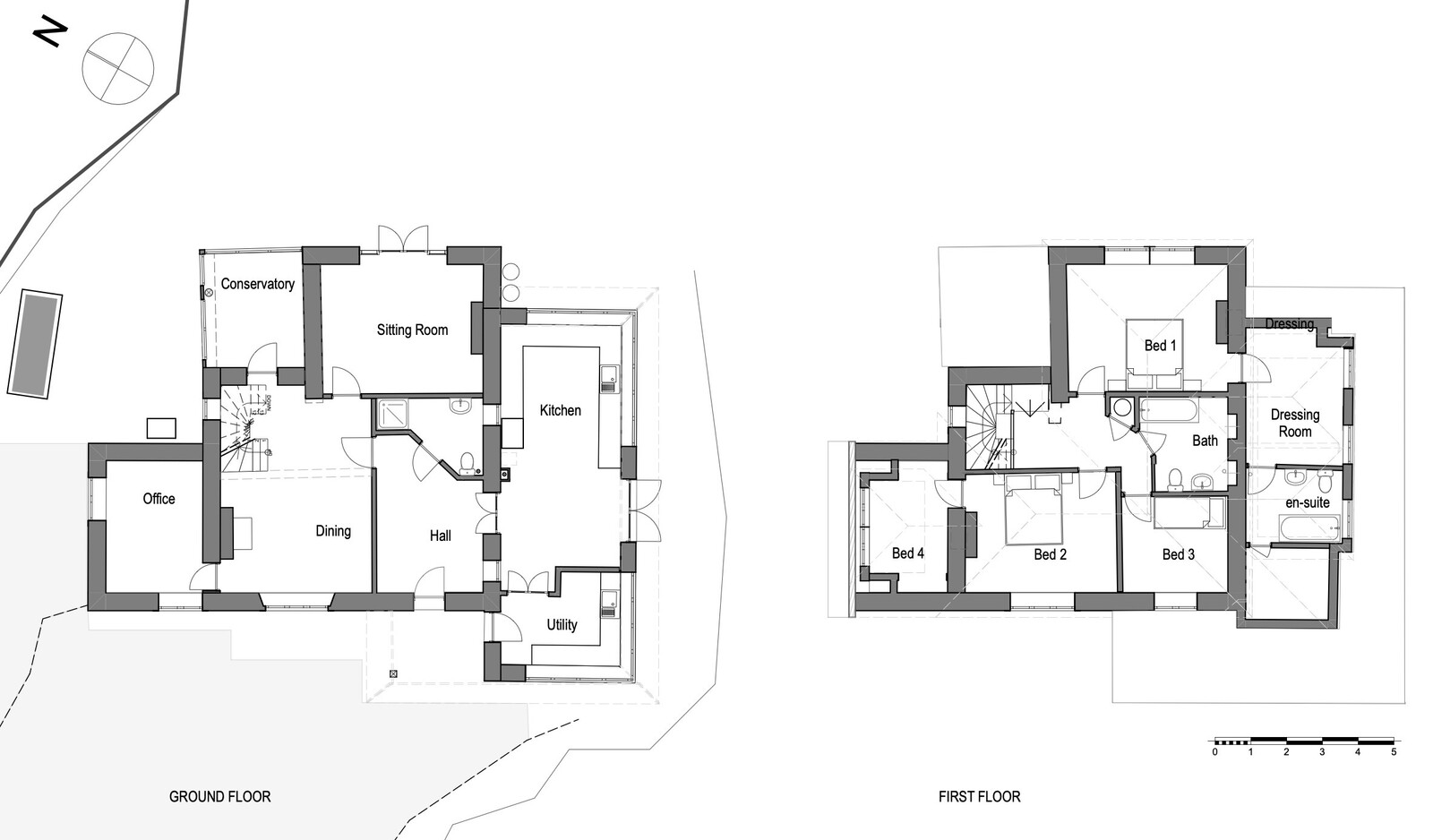
This rural house on a natural promontory has wide ranging views of the beautiful Somerset countryside. Over many years successive extensions have left the original core of the house dark, with awkward internal circulation to some poorly insulated extensions.
Through client discussions, we developed a series of interventions to relocate the ground floor shower room, utility room, hallway and entrance. Extensive new openings between some of the remaining rooms will create spacious open-plan living space, carefully zoned for kitchen, dining, sitting, watching TV and reading areas. The existing living room is being left untouched as a comfortable grown-up snug . A new central staircase will lead to a more rational layout of directly accessible bedrooms.
The project is currently at RIBA stage 4